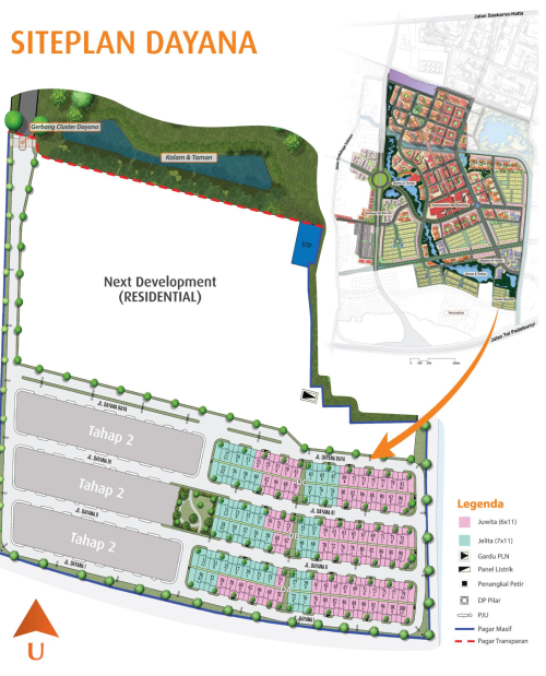
Dayana - Summarecon Bandung

Project Name Dayana - Summarecon Bandung
Developer Name PT Summarecon Agung Tbk
Total Landbank (Ha) 5.3
Website https://www.summareconbandung.com/project/dayana
City Bandung
Province Jawa Barat
Demography
Population 2,528,160 in (2024)
People Density 15,175.94/km2
Regional Minimum Wage (UMR) IDR 4,482,914 in (2025)

Description

Dayana - Summarecon Bandung is located in Kecamatan Gedebage, Bandung, Jawa Barat